Želite manje tablice? Angažirajte se!
- Napisao/la Tomislav Bešenić
- Objavljeno u NOVOSTI

Krenula inicijativa za smanjenje hrvatskih registarskih pločica na razinu slovenskih i talijanskih. MUP traži prijedloge
Ministarstvo unutarnjih poslova predstavilo je prijedloge novih registracijskih pločica za automobile s europskim logom i pozvalo javnost na sudjelovanje u javnoj raspravi za sva vozila koja će biti otvorena mjesec dana. Da je kojim slučajem vrijeme izbora, rekli bismo: izađite na izbore!
Zainteresirani građani koji žele sudjelovati u javnoj raspravi svoje prijedloge i primjedbe mogu slati preko MUP-ovih internetskih stranica http://www.mup.hr na kojima se nalazi Obrazac za sudjelovanje i mail Ova e-mail adresa je zaštićena od spambota. Potrebno je omogućiti JavaScript da je vidite. na koji možete poslati svoj prijedlog.
Treba naglasiti da ovi prijedlozi nisu konačni, iz MUP-a su pozvali na javnu raspravu da se javi svatko tko ima neke prijedloge. Nove registracijske oznake počele bi se postupno uvoditi od sredine iduće godine, bez obaveze, možda postupno i do desetak godina, a to će ovisiti o interesu građana.
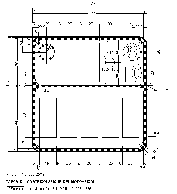
Spomenimo da EU ne nalaže kakve bi registarske pločice trebale biti. Moto Puls predlaže da nove tablice budu manje, po dimenzijama identičnim kao u nama najbližim europskim zemljama, u Italiji - domovini dizajna (177x177 mm) ili susjednoj Sloveniji (180x180 mm). Svakako bi željeli vidjeti slova u dva reda kakva imaju sve Europske zemlje, a ne kao naše aktualne u 3 reda.
Rasprava MUP-a se vodi i oko državnog grba kojeg mi jedini u Europi imamo na aktualnoj registarskoj pločici. Primjerice Talijani, Britanci i Španjolci uopće nemaju nikakav grb, Slovenci, Austrijanci, Njemci imaju grb pokraine ili grada, Francuzi imaju regionalni logo i ispod njegov kodni broj itd. Njemci pak na tablicu uz grb lijepe i oznaku o datumu isteka registracije.
U nastavku vam donosimo slike tablica iz susjednih zemalja
www.mup.hr
Obrazac
Kako sudjelovati u javnoj raspravi
Javna rasprava započinje 11. prosinca 2013. i traje 30 dana, odnosno do 11. siječnja 2014. godine.
U tom razdoblju zainteresirana javnost ima mogućnost uputiti svoje prijedloge i primjedbe ispunjavanjem Obrasca i slanjem na adresu e-pošte: Ova e-mail adresa je zaštićena od spambota. Potrebno je omogućiti JavaScript da je vidite..
Za svoje prijedloge i primjedbe molimo koristite priloženi obrazac.
Nakon završenog internetskog savjetovanja, sve pristigle primjedbe objavit će se na internetskoj stranici MUP-a RH.
SLOVENIJA: (180x180 mm)

ITALIJA: (177x177 mm)


NjEMAČKA: (180/200/220x200 mm)



MAĐARSKA: 

FRANCUSKA:


AUSTRIJA: (250x200 mm)

ŠPANJOLSKA: (220x160 mm)

VELIKA BRITANIJA:

ŠVEDSKA:
POLJSKA:
BELGIJA: